Flere størrelser
Kvalitetsmaterialer
Hurtig montering

Flapsluser til erhverv og industri
Vores Flapsluser bliver fremstillet af gode materialer som har alle godkendelser. Vi har ofte de rigtige reservedele til egne og andre sluser på lager. Dette gør at vi meget hurtigt kan sende dele eller reparerer en Flapsluse.
Hver enkelt sluse gennemgår vores skrappe kvalitetskrav og fremstilles udelukkende af godkendte og testede dele.
Flapsluse
Sluser bruges til at beskytte læsseramper mod vejr og vind, samt personalet der læsser lastbilerne-Dimensionerne afhænger af: bredden og højden på lastbilen og størrelsen på porten.
Vedligehold og service skal udføres af en kvalificeret portmontør med kendskab til vores produkter.

Erfaren rådgivning
Hurtig levering
Et sikkert valg
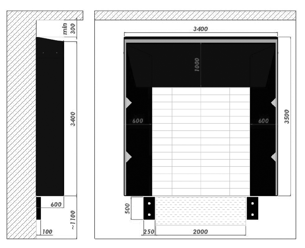
Tekniske specifikationer
STANDARD MÅL
Bredde 3400 mm ±10 mm
Højde 3500 mm ±10 mm
Dybde 600 mm ±10mm
Øvre tætning 1000 mm ±30mm
Side tætninger 600 mm ±30mm
Monteringshøjde: 500 mm over den højeste lastbil
3 mm PVC tætning. Vægt ~3500 g/m2
Farve standard Sort
Side presenning farve Sort
Arbejdstemperaturområde −25ºC til +50ºC
SPECIAL MÅL
Bredde 2500÷3600 ±10 mm
Højde 2500÷4400 ±10 mm
Dybde 400÷800 ±10mm
Øvre tætning 500÷1600 ±30mm
Side tætninger 600 mm ±30mm 400÷800 ±30mm
Monteringshøjde: 500 mm over den højeste lastbil
3 mm PVC tætning. Vægt ~3500 g/m2
Farve standard Sort
Side presenning farve Sort
Arbejdstemperaturområde −25ºC til +50ºC
Kvalitet, montering og levering
Når I køber en ny sluse fra Reasystem, så er I sikret en gennemtestet sluse af høj kvalitet. Alle vores industrisluser gennemgår nemlig en række tests så vi har en høj kvalitetssikring på alle vores leverancer.
Udover den høje kvalitet er i sikret hurtig levering og montering.
Hvis I er yderligere interesseret i en nu sluse, så giv os endelig et kald
på tlf. 88 44 17 13 eller skriv til os på info@reasystem.dk.

